- Can be fabricated into turns, bends, polygonal shapes and more
- High performance air, water, thermal and fire resistance results
- Options allow tilt or parallel sliding windows that open independently next to each other
- Wide variety of paint and finish options
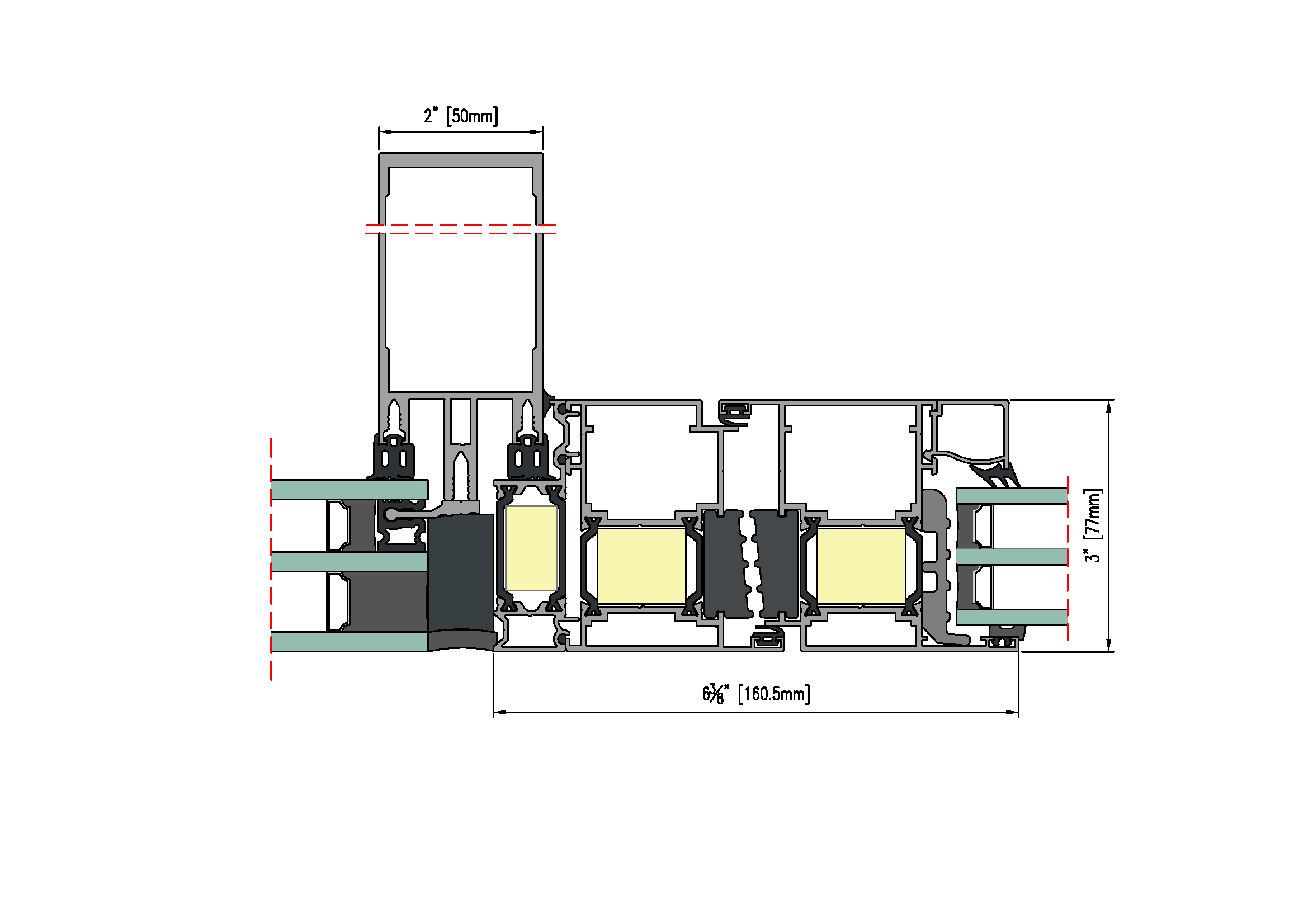
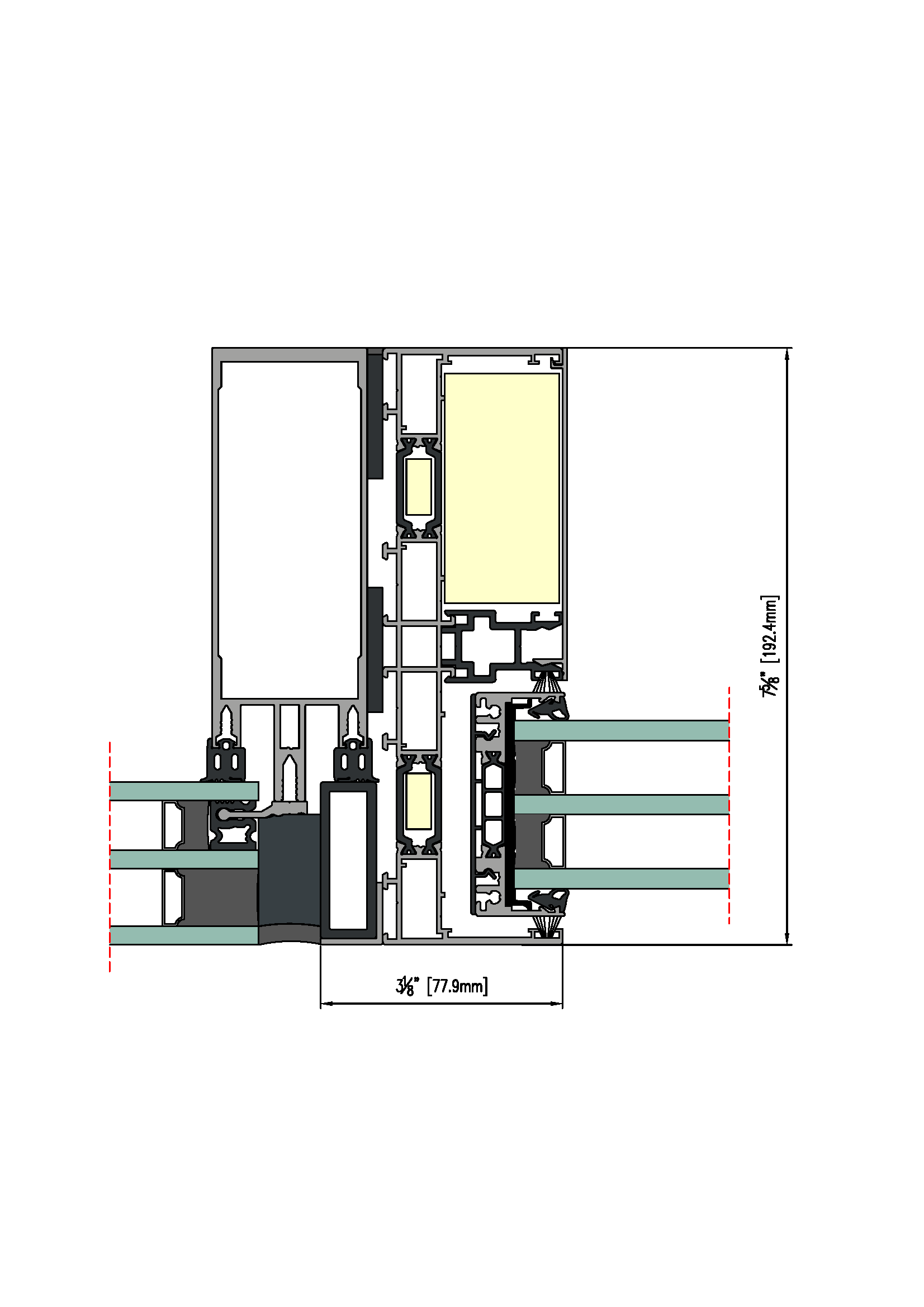
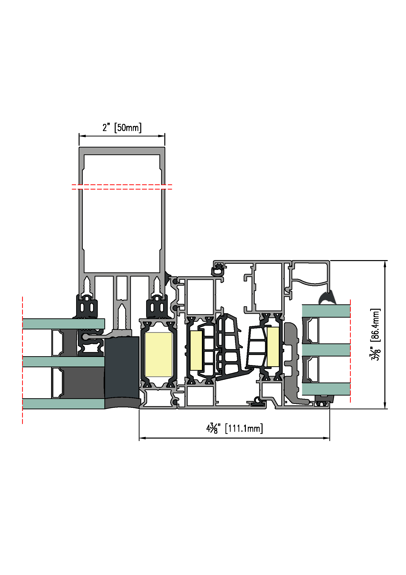
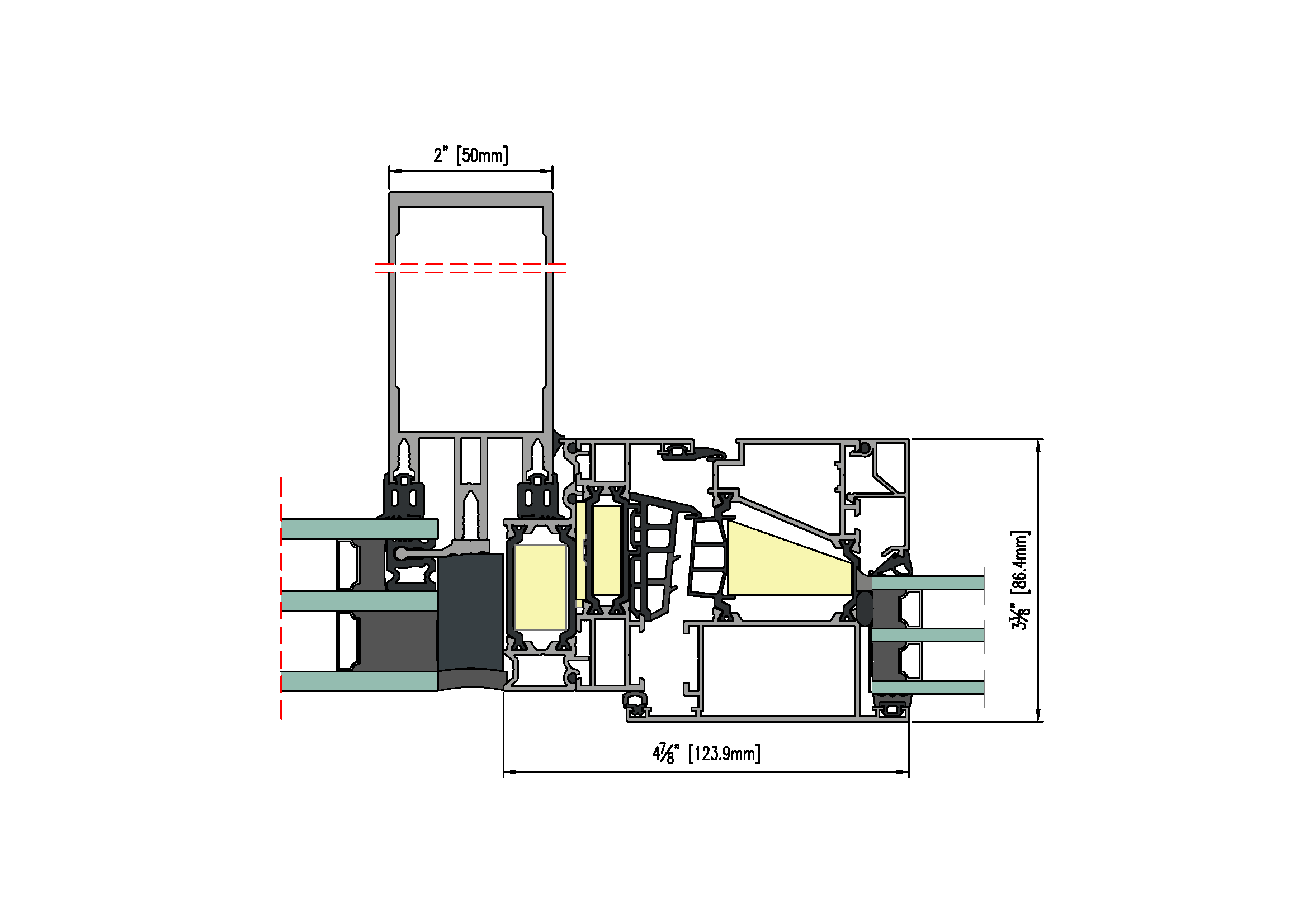
Features



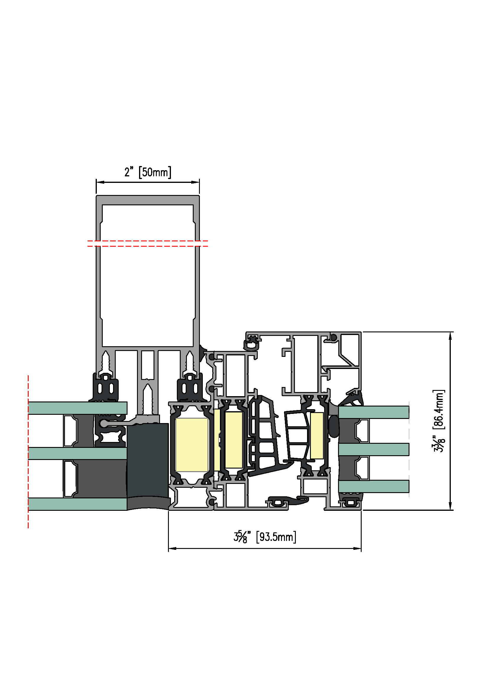
Technical Parameters
- Water Tightness: 15 psf
- Designed Pressure: CW 75 psf
- Thermal Insulation: From 0.11 Btu/hft2F
- Acoustic Insulation: STC up to 53 dB