- Superior U-Value range of 0.17-0.31
- Energy-efficient, sustainable and environmentally focused
- Meets and exceeds most rigorous energy codes and guidelines
- Endless design options such as custom finishes, glass choices, shapes, and sizes
- Our most cost-efficient and easy to order/install product line
Features






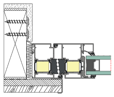
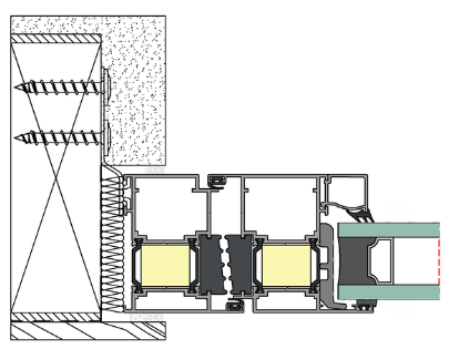
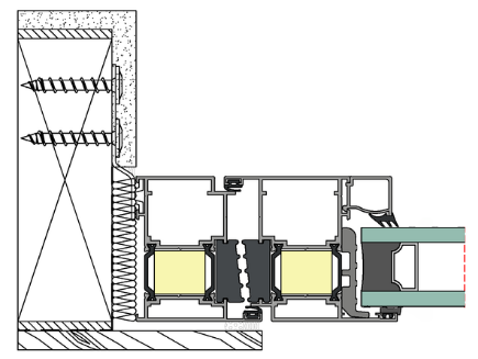
Technical Parameters
- Water tightness: 15 psf
- Design pressure: Operable 65 psf / Fixed 75 psf
- Thermal insulation / U-Value: From 0.17 Btu/hft2F
- Acoustic insulation: STC up to 48 dB
- Max panel weight: 1100 lbs (500 kg)
- Max Panel Height: 8 ft (2,44 m)
- Max Panel Width: 5 ft (1,5 m)
Accessories
Standard
RAL 7016
RAL 9005
RAL 9007
RAL 9016
Special 1
Smooth Carriage
CLassic 31
Classic 35
Metallic Grey
Special 2
Night Promise
Pistache
Royal Green
Perfect Aubergine
Woodgrain
Bright Oak
Sour Cherry
Walnut
Winchester
Anodized
C-0-S Anodized Natural Silver
C-31-S Anodized Inox
C-32-S Anodized Champagne
C-35-S Anodized Black
Thickness
Min: 0.24" (6 mm)
Max: 2.17" (55 mm)
Low-E coating
- Various options depends from required conditions SHGC (Solar Heat Gain Coefficient) / LT (Light Transmittance). As a standard every pane with e-coating.